El cargador subterráneo diésel FL14 es un equipo LHD diseñado para operaciones de producción en minas metálicas subterráneas de gran escala, con una capacidad de carga nominal de 14 toneladas y un cucharón estándar de 6 m³, ideal para trabajos de carga y transporte de material en condiciones exigentes.
Características:
-
Cargador LHD articulado de alto rendimiento, equipado con componentes de marcas internacionales reconocidas, que garantizan alta confiabilidad, durabilidad y facilidad de mantenimiento en operaciones mineras intensivas.
-
Sistema hidráulico variable EHC con control hidráulico por piloto, que mejora la eficiencia del equipo, optimiza el consumo de energía y proporciona movimientos suaves y precisos del cucharón.
-
Sistema de control basado en tecnología CAN-bus, con plataforma electrónica FET y pantalla integrada a bordo que permite visualizar parámetros operativos en tiempo real, realizar autodiagnóstico y detectar fallas de manera rápida.
-
Control remoto visual por radio disponible, que permite operar el equipo de forma segura a distancia en zonas de riesgo o durante operaciones especiales.
-
Cabina cerrada certificada FOPS/ROPS con aire acondicionado, diseñada para mejorar la seguridad y comodidad del operador, equipada con control mediate doble joystick, luces LED y sistema de interbloqueo de puerta.
-
Sistema hidráulico con bomba de pistones de desplazamiento variable y detección de carga, junto con un sistema de refrigeración independiente para motor, transmisión y aceite hidráulico que mejora la eficiencia térmica del equipo.
-
Opcionalmente puede equiparse con sistema automático de lubricación Lincoln y sistema automático de supresión de incendios Ansul, aumentando la seguridad y reduciendo los tiempos de mantenimiento.
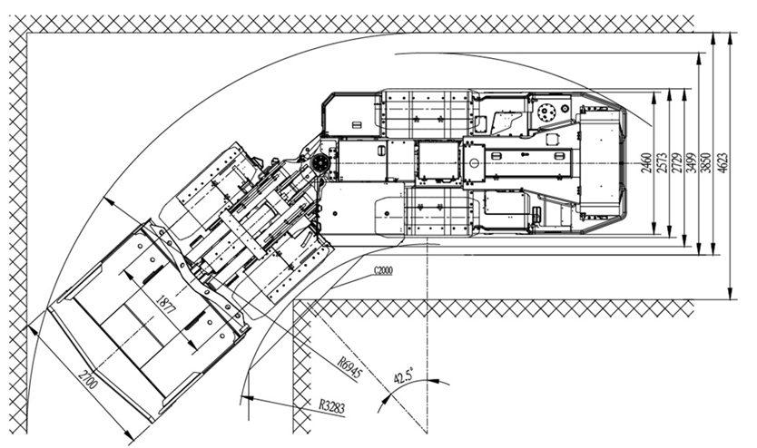
Especificaciones Técnicas del cargador subterráneo FL14
|
Longitud máxima |
10 641 mm |
|
Peso operativo |
39 000 kg |
|
Fuerza de arranque |
265 kN |
|
Capacidad de carga útil |
45 000 kg |
|
Fuerza de tracción |
300 kN |
|
Motor |
Volvo TAD1350VE |
|
Potencia nominal |
256 kW @ 1900 rpm |
|
Par máximo |
1780 Nm @ 1260 rpm |
|
Norma de emisiones |
EU Stage V |
¿Buscas mayor productividad y eficiencia en minería subterránea?
El FL14 combina potencia, tecnología avanzada y componentes de alto nivel para ofrecer un rendimiento confiable en operaciones de carga intensivas. Su diseño robusto, junto con sistemas inteligentes de control y seguridad, permite maximizar la productividad y reducir los tiempos de inactividad en la mina.












